Espace propriétaire
fr
Carnac (56340)

3 pièces - 73 m²

CARNAC : Appartement T3 73 m2 NEUF entre BOURG et PLAGES

479 000 €
Ref : AFL012-A01
A propos de ce bien

Profitez des FRAIS DE NOTAIRE REDUITS et de TOUT LE CONFORT DU NEUF avec 3 pièces de 73 m2 vendu avec garage et livrable pour vos futures vacances d'été 2026 !

Au programme : une résidence sécurisée de standing avec ascenseur composée de 20 logements répartis en 2 immeubles avec le bourg et ses commerces à proximité et la Grande Plage à 15 minutes à pied.

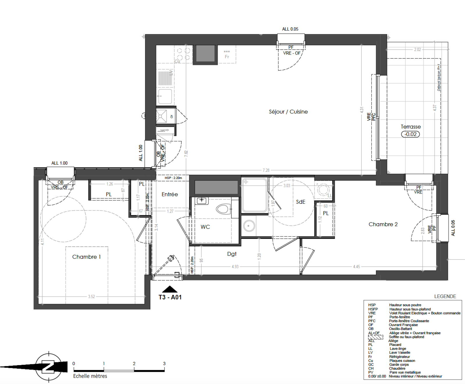
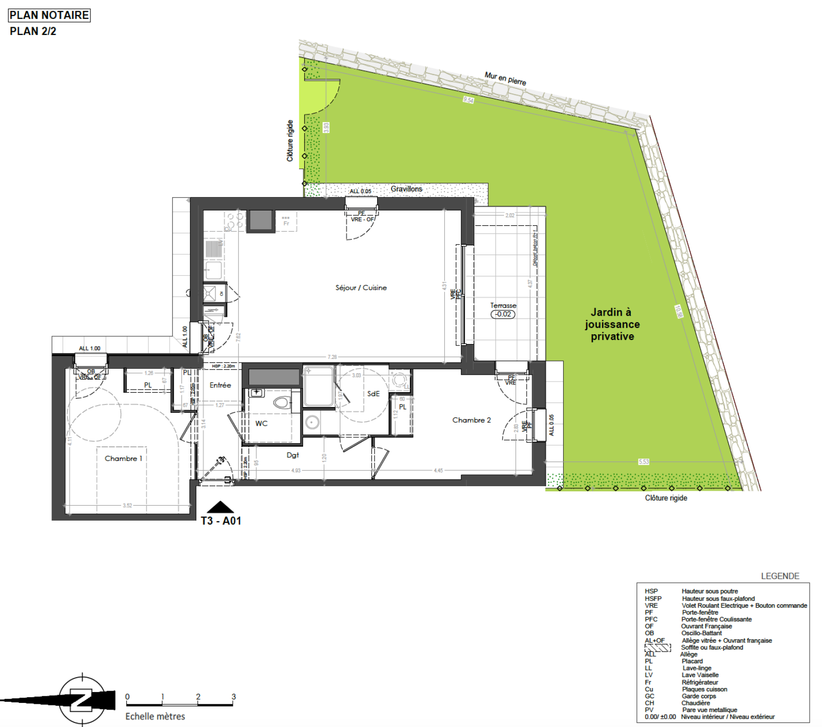
L'appartement : situé en RDJ, ce joli T3 offre une entrée avec son propre placard, une pièce de vie de 31 m2 avec un coin cuisine (non fournie), 2 grandes chambres, une salle d'eau avec meuble vasque, un WC suspendu séparé, et une terrasse de presque 9 m2 avec son jardin à jouissance privative de 64 m2, le tout doublement exposé Sud et Est.

Les prestations : chauffage au gaz individuel, DV ALU et volets roulants électriques, parquet, visiophone, local 2 roues en sous-sol.

Ne tardez pas : les travaux ont déjà commencé !

Les informations sur les risques auxquels ce bien est exposé sont disponibles sur le site Géorisques : www.georisques.gouv.fr

Descriptif de ce bien
Général
Code postal 56340
Surface loi Carrez (m²) 72,98 m²
Nombre de chambre(s) 2
Nombre de pièces 3
Ascenseur OUI
Détails
Nb de salle d'eau 1
Cuisine Sans
Mode de chauffage Gaz de ville
Type de chauffage TRAD_TYPE_CHAUFF_CHAUDIERE
Format de chauffage Individuel
Interphone OUI
Visiophone OUI
Balcon NON
Terrasse OUI
Nombre de garage 1
Cave NON
Exposition Sud-Est
Financier
Prix de vente honoraires TTC inclus 479 000 €
Energie
DPE GES
Contacter pour ce bien
L'agence
Téléphone 07 83 25 74 37
Adresse
5 allée du Souvenir Français 56340 Carnac

* Champ obligatoire

Les informations recueillies sur ce formulaire sont enregistrées dans un fichier informatisé par La Boite Immo agissant comme Sous-traitant du traitement pour la gestion de la clientèle/prospects de l'Agence / du Réseau qui reste Responsable du Traitement de vos Données personnelles. La base légale du traitement repose sur l'intérêt légitime de l'Agence / du Réseau. Elles sont conservées jusqu'à demande de suppression et sont destinées à l'Agence / au Réseau. Conformément à la loi « informatique et libertés », vous disposez des droits d’accès, de rectification, d’effacement, d’opposition, de limitation et de portabilité de vos données. Vous pouvez retirer votre consentement à tout moment en contactant directement l’Agence / Le Réseau. Consultez le site https://cnil.fr/fr pour plus d’informations sur vos droits. Si vous estimez, après avoir contacté l'Agence / le Réseau, que vos droits « Informatique et Libertés » ne sont pas respectés, vous pouvez adresser une réclamation à la CNIL. Nous vous informons de l’existence de la liste d'opposition au démarchage téléphonique « Bloctel », sur laquelle vous pouvez vous inscrire ici : https://www.bloctel.gouv.fr Dans le cadre de la protection des Données personnelles, nous vous invitons à ne pas inscrire de Données sensibles dans le champ de saisie libre.
Ce site est protégé par reCAPTCHA, les Politiques de Confidentialité et les Conditions d'Utilisation de Google s'appliquent.

Découvrir nos outils